|
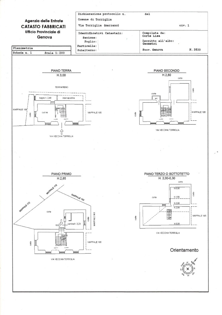
P.T.: entrata, Cucina,
bagno, sala, e sottoscala.
P.1: 2 camere.
P.A.: 2a entrata da terrazzo (mq.20*), e cantina (mq.5*)
P.2: da rifare completamente 4 locali e gabinetto.
|
 Dettagli & Fotografie |

Video Visita |
 Mappa Geografica |
 Chiedi Informazioni |
| Giardino / Orto / Terreno: No. |
Terrazzo: Mq.20, ammezzato. |
Box / Posto Auto: No |
| Cascina: Mq. 5*, ammezzato. |
Accesso indipendente: Sì. / No. |
Vista: sul Borgo. |
| Finiture: Economiche |
Contesto: Frazione |
Certificato Energetico: Classe "G" |
| Tipo Immobile: Mono Familiare |
Spese Amm.ne: € / anno. |
Arredamento: Ammobiliato / Vuoto / SemiAmmobiliato. |
| Categoria Catastale: A/4 Abitazione popolare |
Note Particolari: |
Condizioni: Da Sistemare
|
Galleria Immagini: (usa le frecce per scorrere le foto)
Abitazione:
| Mq. Totali Circa: |
110 |
Livelli: |
3 |
Al piano: |
T,1,2 |
Vani: |
|
| Camere: |
3 |
Soggiorno: |
|
Vano Ingresso: |
|
Spazio Cucina: |
A Vista. |
| Bagni: |
1 |
Dispensa: |
|
Ripostiglio: |
|
Lavanderia: |
|
| Mq. Terrazzo: |
20 |
Mq. Poggiolo: |
|
Mq. Tavernetta : |
0 |
Mq. Cantina : |
5 |
| Mq. Soffitta > 1.80: |
|
Mq. Sottotetto < 1.80: |
|
Mq. Mansardati : |
|
Caminetto / Forno Legna: |
|
Spazi Esterni:
| Mq. Giardino: |
|
Posizione Giardino: |
|
Mq. Terreno: |
|
Posizione Terreno: |
|
| Mq. Orto: |
|
Posizione Orto: |
|
Mq. Box: |
|
Posizione Box: |
|
| Posto Auto: |
|
Parchegg. Libero: |
|
Mq. Cantina: |
|
Posiz. Cantina: |
|
| Mq. Cascina: |
|
Posiz. Cascina.: |
|
Mq. Legnaia: |
|
Posiz. Legnaia: |
|
Riscaldamento Ambiente / Acqua:
| Riscaldamento Primario.: |
|
Riscaldamento Secondario.: |
|
Risc. Acqua Sanitaria |
Boiler |
| Altro: |
|
Solare Termico |
|
Pannelli Fotovolt.: |
|
Impiantistica:
| Imp. Elettrico: |
Salva Vita |
Imp. Fognario: |
Comunale. |
Acquedotto:
|
Comunale. |
Condizionamento: |
|
| Cottura / Cucina |
Bombola. |
Imp. TV Satellite: |
|
Internet: |
|
Altro : |
|
Accessori / Rifiniture:
| Telaio Finestre: |
Alluminio |
Vetro: |
Singolo / Doppio |
Tipo Infissi:
|
Persiane |
Materiale Infissi: |
Legno / Allum. |
| Pavim. Camere: |
Legno / Ceramica |
Pavim. Cucina: |
Ceramica |
Pavim. Soggior.:
|
Ceramica |
Pavim. Bagno.: |
Ceramica. |
| Pareti Camere: |
Intonaco |
Pareti Cucina: |
Ceramica. |
Pareti Soggior.: |
Intonaco |
Pareti Bagno: |
Ceramica. |